Skip the navigation and jump to this page's content.

111 Grey Street Unit# 212 Brantford, Ontario

$399,900
3 Beds
  2 Full

PROPERTY INFO

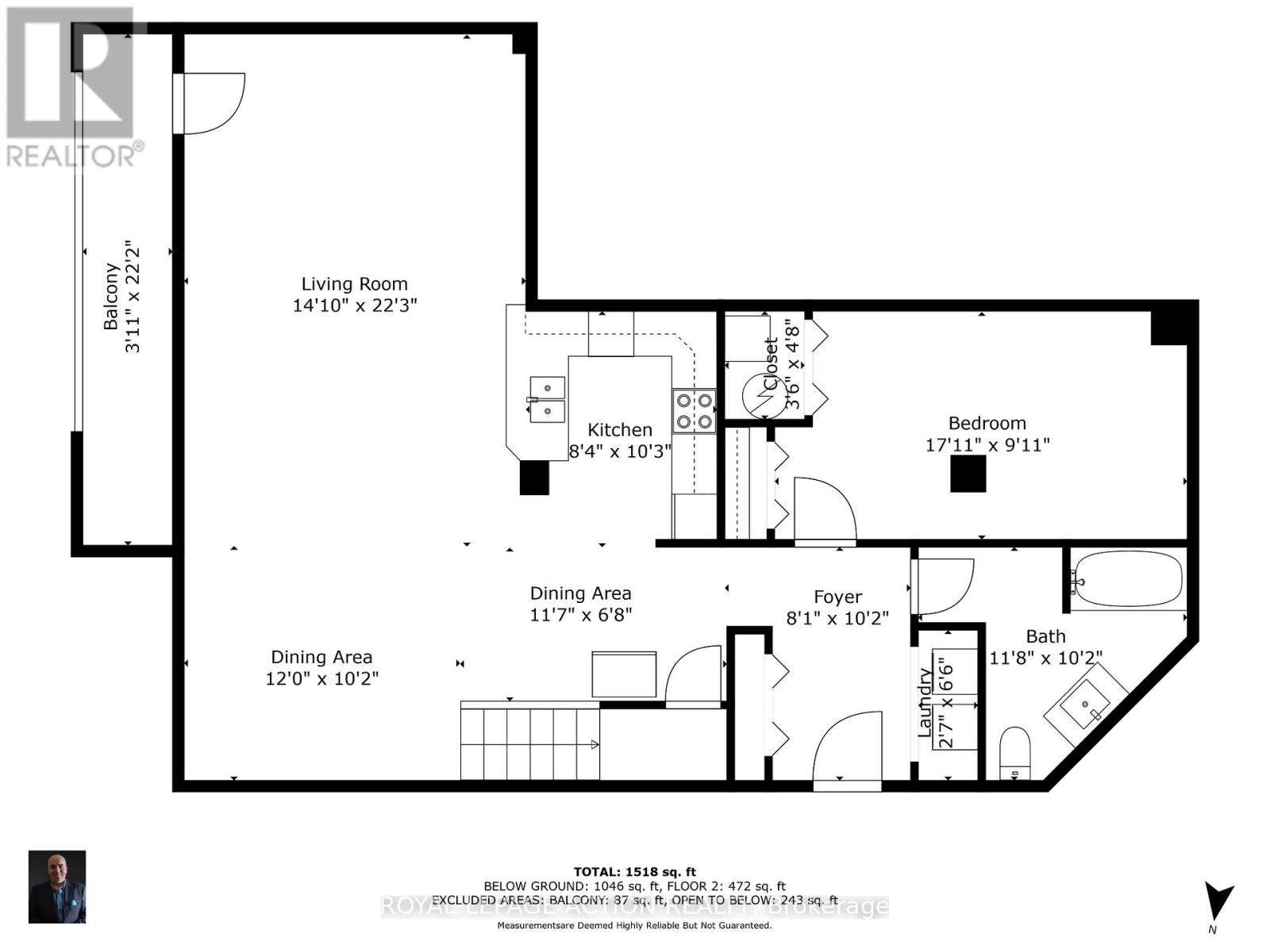
Welcome to Unit 212 at 111 Grey Street a bright and stylish 2-storey condo located in the heart of Brantford. Perfect for first-time buyers, downsizers, or savvy investors, this well-maintained home offers comfort, convenience, and plenty of space to live and grow. Inside, you'll find 3 generous bedrooms, 2 full bathrooms, and the ease of in-suite laundry. The open-concept main level is a standout, featuring a spacious living room with soaring 16-foot ceilings that flood the space with natural light perfect for relaxing or hosting friends. The kitchen is thoughtfully laid out with ample cabinetry, plenty of counter space, and sleek stainless steel appliances. Enjoy your private balcony just off the main living area a peaceful retreat for morning coffee or evening sunsets. The main floor also includes a large bedroom, a full 4-piece bathroom, and a convenient laundry area. Upstairs, you'll find two additional bedrooms and another full bathroom, making this layout ideal for families, roommates, or those who work from home. This move-in ready condo comes with one assigned parking spot and plenty of visitor parking for guests. You're steps away from public transit, parks, and shopping including a local grocery store right across the street! Don't miss your chance to own this charming, low-maintenance home in a central and sought-after location. (id:4555)

PROPERTY SPECS

Price $399,900
City Brantford, Ontario
Bed / Bath 3 / 2 Full
Address 111 Grey Street Unit# 212
Listing ID X12279835
Style Apartment
Parking 1.00
Type Condominium
Status For Sale

EXTENDED FEATURES

Subtype Single Family Community Features Pets Allowed With Restrictions Features Balcony, In suite Laundry Ownership Freehold Basement None Heating / Cooling Forced air, Natural gas Parking 1.00



team photo
Windsor: 519-903-9355
Toronto: 905-220-7333
Office: 905-335-3042

REQUEST MORE INFORMATION

Grocery Stores
Schools
Restaurants
Gas Stations
Banks
Parks
Transit
Police
Fire Station
Place of Worship
Please select an amenity above to view a list.





team photo

Connect with Us

Loading...