Skip the navigation and jump to this page's content.

26 Lathbury Street Brampton, Ontario

$699,000
3 Beds
  2 Full / 1 Half
Virtual Tour

PROPERTY INFO

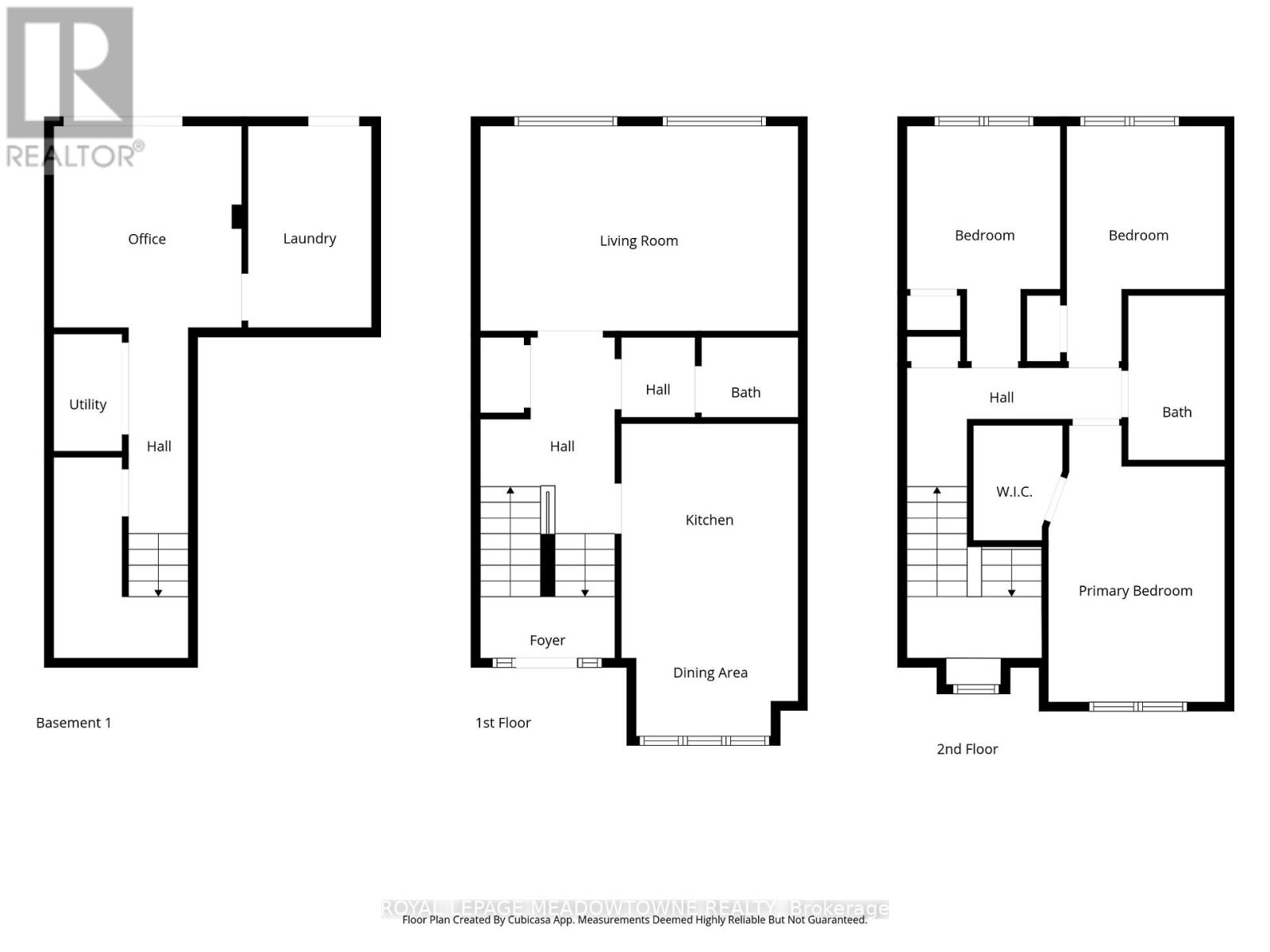
First time offered for sale! Welcome to 26 Lathbury Street. No monthly condo or road fees!! Freehold move-in ready home offering 1200 + sq ft of comfortable living space in Northwest Brampton. This property is an excellent opportunity for buyers looking to enter the market or move up without the added cost of condo fees. The fantastic floor plan maximises every square inch and features a bright and functional layout with an open concept living and dining area. The functional eat in kitchen has lots of counter space and cupboards. This floor also provides a convenient powder room. The versatile family room or flex space in the basement enjoys walkout access to the backyard. Plus, direct garage access for everyday convenience. Upstairs, you will find 3 generously sized bedrooms and a full 4 piece bathroom. The primary fits a king-size bed with room to spare, along with a walk-in closet for ultimate organisation. Outside, the property provides parking for two vehicles and a private backyard space ideal for relaxing or entertaining. Located close to schools, parks, shopping, and public transit, Mount Pleasant GO is only minutes away. This is a fantastic opportunity if you are seeking a super clean, well maintained freehold home with no condo fees in a growing and accessible community. Book your private showing today, before it's too late! (id:4555)

PROPERTY SPECS

Price $699,000
City Brampton, Ontario
Bed / Bath 3 / 2 Full, 1 Half
Address 26 Lathbury Street
Listing ID W12860120
Style Row / Townhouse
Flooring Tile, Carpeted
Parking 2.00
Type Residential
Status For Sale

EXTENDED FEATURES

Subtype Single Family Community Features Community Centre Features Level Ownership Freehold Basement Finished, Separate entrance, Walk out, N/A Heating / Cooling Forced air, Natural gas Sewer Sanitary sewer Parking 2.00



team photo
Windsor: 519-903-9355
Toronto: 905-220-7333
Office: 905-335-3042

REQUEST MORE INFORMATION

Grocery Stores
Schools
Restaurants
Gas Stations
Banks
Parks
Transit
Police
Fire Station
Place of Worship
Please select an amenity above to view a list.





team photo

Connect with Us

Loading...