Skip the navigation and jump to this page's content.

49 Lockwood Road Brampton, Ontario

$939,990
4 Beds
  3 Full / 1 Half
Virtual Tour

PROPERTY INFO

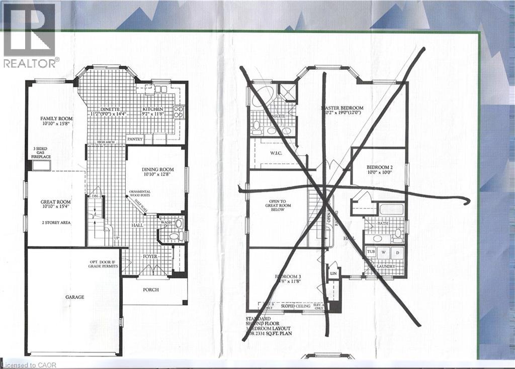
One owner home in the Fletcher's West community. True double-door entry with large porch and real cold cellar. Unbeatable value and size. Clean home. Built in 1998 by Remington Homes, this all brick 2447 sq.ft. plus basement home excels in space. Extra large kitchen for all to gather around. Pride of ownership in this superbly kept home. 4 family size bedrooms including a King& Queen size Primary bedroom with 5 piece ensuite. Open concept family and living room with 3sided gas fireplace. Ultra convenient and rare 2nd floor laundry room. This large centre hall plan is awaiting your custom touches! Come add your personality, both throughout and in the unspoiled basement. Completely repainted throughout. Quality 30yr shingles replaced 8 years ago. Solar panels on roof to the benefit of a solar company without affecting roof. Located in the heart of it all, shopping, transit, great schools and park. Large family? No problem with all this space. Huge potential to create a custom 1 or 2 bedroom basement apartment or decorate to your taste. Front yard and driveway nicely landscaped with interlock stones and french curbs. Meticulously maintained throughout the years. Double car garage with upgraded insulated garage door. Stainless steel appliances, central vacuum system and much more. Don't let this one getaway. (id:4555)

PROPERTY SPECS

Price $939,990
City Brampton, Ontario
Bed / Bath 4 / 3 Full, 1 Half
Address 49 LOCKWOOD Road
Listing ID 40805570
Style 2 Level, House
Fireplace 1.00
Parking 4.00
Type Residential
Status For Sale

EXTENDED FEATURES

Subtype Single Family Community Features School Bus, Community Centre Features Automatic Garage Door Opener, Solar Equipment Ownership Freehold Basement Unfinished, Full Heating / Cooling Forced air, Natural gas Sewer Municipal sewage system Parking 4.00



team photo
Windsor: 519-903-9355
Toronto: 905-220-7333
Office: 905-335-3042

REQUEST MORE INFORMATION

Grocery Stores
Schools
Restaurants
Gas Stations
Banks
Parks
Transit
Police
Fire Station
Place of Worship
Please select an amenity above to view a list.





team photo

Connect with Us

Loading...