Skip the navigation and jump to this page's content.

30 Rambler Drive Brampton, Ontario

PROPERTY INFO

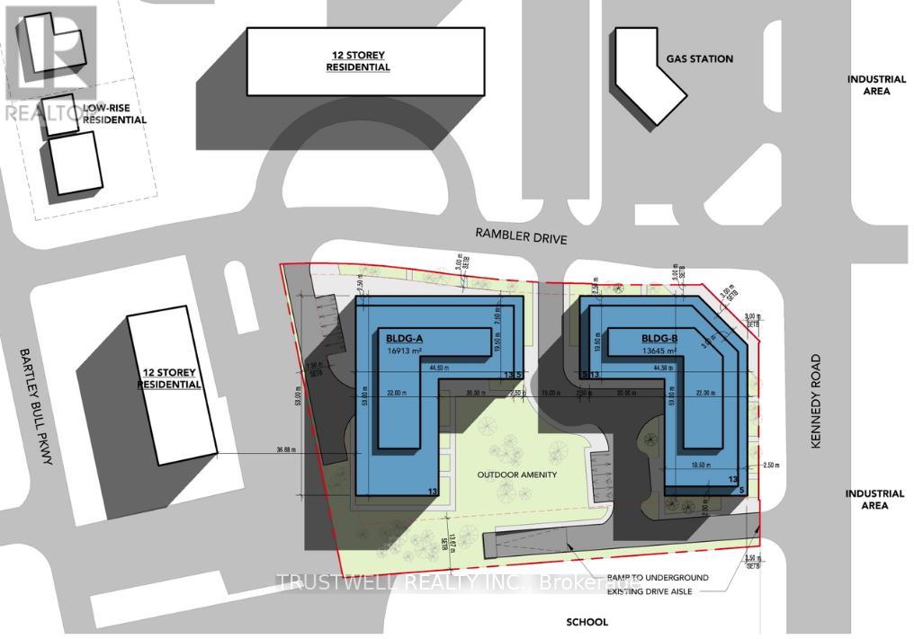
Located At Rambler Dr / Kennedy Rd S. High Traffic Area. Corner Plaza. Potential For Mixed-Use Commercial & Residential Condo Redevelopment. Potential To Develop To High Density For Low-Cost Rental House Project. Well Steady Tenants. Seller Is Retiring And Motivated To Sell. Ideal For Long-Term Investment Or Convert To Low-Rental Project. (id:4555)

PROPERTY SPECS

Price $16,888,888
City Brampton, Ontario
Address 30 Rambler Drive
Listing ID W12140362
Land Size 2.2
Type Industrial/Commercial
Status For Sale

EXTENDED FEATURES

Subtype Retail Ownership Freehold Heating / Cooling Forced air, Natural gas



team photo
Windsor: 519-903-9355
Toronto: 905-220-7333
Office: 905-335-3042

REQUEST MORE INFORMATION

Grocery Stores
Schools
Restaurants
Gas Stations
Banks
Parks
Transit
Police
Fire Station
Place of Worship
Please select an amenity above to view a list.





team photo

Connect with Us

Loading...