Skip the navigation and jump to this page's content.

65 Donald Street Barrie, Ontario

$599,900
3 Beds
  1 Full
Virtual Tour

PROPERTY INFO

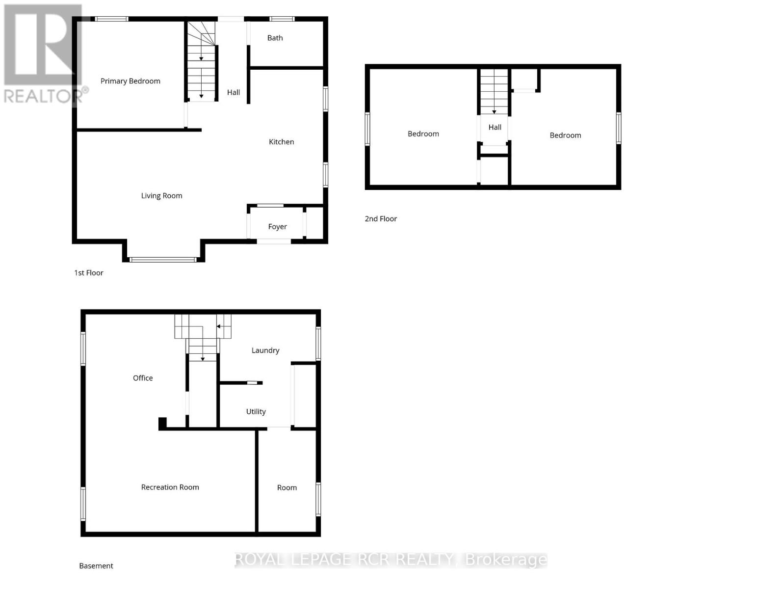
Welcome to this adorable 1.5-storey home full of character and thoughtful updates. Built in 1950, this well-maintained property features beautiful original hardwood floors and a functional layout that suits a variety of buyers. The main floor offers a primary bedroom and convenient 3-piece bathroom, ideal for those seeking main floor living. Upstairs you'll find two additional bedrooms, perfect for kids, guests, or a home office. The finished basement adds extra living space with a cozy family room, office area, laundry, and plenty of storage. Step outside to enjoy the covered back porch overlooking a fully fenced yard, offering a great space to relax or entertain. A detached single-car garage provides additional storage and parking. Important updates have already been completed, including roof (approx. 8 years), windows & doors, furnace, central air all 2010. Plus, a 200-amp breaker panel, giving peace of mind to the next owner. Conveniently located within walking distance to downtown Barrie, parks, and shopping. Available for quick possession, making this a fantastic opportunity for first-time buyers, downsizers, or investors. (id:4555)

PROPERTY SPECS

Price $599,900
City Barrie, Ontario
Bed / Bath 3 / 1 Full
Address 65 Donald Street
Listing ID S12872928
Style House
Parking 3.00
Type Residential
Status For Sale

EXTENDED FEATURES

Subtype Single Family Features Sump Pump Ownership Freehold Basement Partially finished, Full Heating / Cooling Forced air, Natural gas Sewer Sanitary sewer Parking 3.00



team photo
Windsor: 519-903-9355
Toronto: 905-220-7333
Office: 905-335-3042

REQUEST MORE INFORMATION

Grocery Stores
Schools
Restaurants
Gas Stations
Banks
Parks
Transit
Police
Fire Station
Place of Worship
Please select an amenity above to view a list.





team photo

Connect with Us

Loading...