Skip the navigation and jump to this page's content.

37 Brookfield Crescent Barrie, Ontario

$924,000
4 Beds
  3 Full
Virtual Tour

PROPERTY INFO

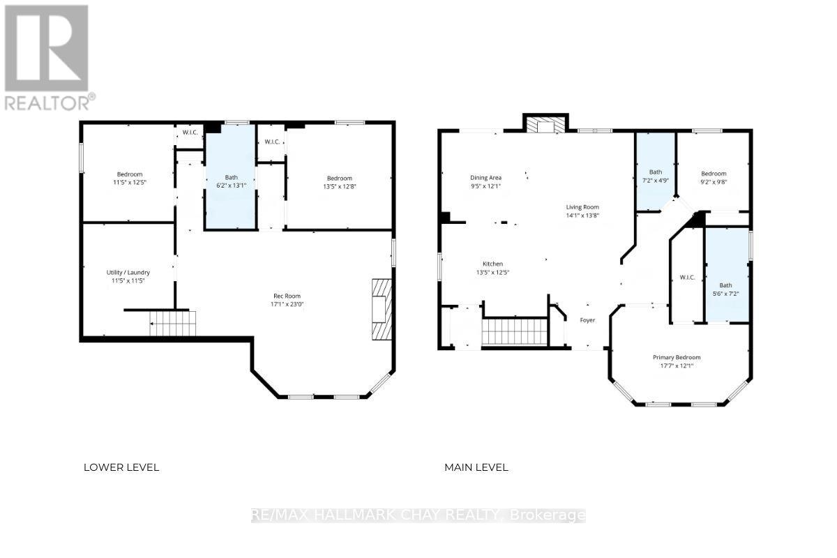
Welcome to 37 Brookfield Crescent - a one of kind customized all brick detached bungalow in Barrie's sought-after family-centric Kingswood neighbourhood. This ~2,700 sq.ft. immaculately maintained open concept home has been updated with tasteful, modern design elements - professionally finished top to bottom for maximum functional living space. From the moment you enter this home, along the custom stonework pathway to the front door entrance with glass insert detail, you are welcomed by the natural light flowing from the custom, oversized skylight in the foyer. The open floor plan of the main level is ideal for spending valued time with family, and perfect for hosting and entertaining. Spectacular custom kitchen with oversized granite island for prepping/serving. Formal dining room where memories are made around the table at festive meals. Seamless flow takes you into the living room with feature wall gas-burning fireplace, 9' ceilings, crown moulding - with walk out to the raised back deck and lower patio seating areas in the fully fenced rear yard. Private living space of this home includes primary suite with w/i closet, exceptional ensuite with glass-walled shower. Main 4pc bath, second bedroom (nursery, home office, study zone, etc) complete this private living zone. Full, finished lower level (~1300 sq.ft.) includes a multi-purpose rec room with feature wall fireplace, an additional 2 bedrooms, another full bath. Double garage with single garage door, as well as parking for four vehicles in the private paved driveway. Original owners customized the builder's plan to create this gem, situated in a quiet neighbourhood that offers a great community vibe. Walking distance to Algonquin Ridge Elementary School and Lake Simcoe's waterfront. Incredible hiking trails, plenty of dedicated green space to enjoy in all seasons. Close to all key amenities - shopping, services - and commuter routes - public transit, GO Train/Bus service, highways. (id:4555)

PROPERTY SPECS

Price $924,000
City Barrie, Ontario
Bed / Bath 4 / 3 Full
Address 37 Brookfield Crescent
Listing ID S12838982
Style Bungalow, House
Fireplace 2.00
Parking 6.00
Type Residential
Status For Sale

EXTENDED FEATURES

Subtype Single Family Ownership Freehold Basement Finished, Full Heating / Cooling Forced air, Natural gas Sewer Sanitary sewer Parking 6.00



team photo
Windsor: 519-903-9355
Toronto: 905-220-7333
Office: 905-335-3042

REQUEST MORE INFORMATION

Grocery Stores
Schools
Restaurants
Gas Stations
Banks
Parks
Transit
Police
Fire Station
Place of Worship
Please select an amenity above to view a list.





team photo

Connect with Us

Loading...