Skip the navigation and jump to this page's content.

480 Huronia Road Unit# 202 Barrie, Ontario

PROPERTY INFO

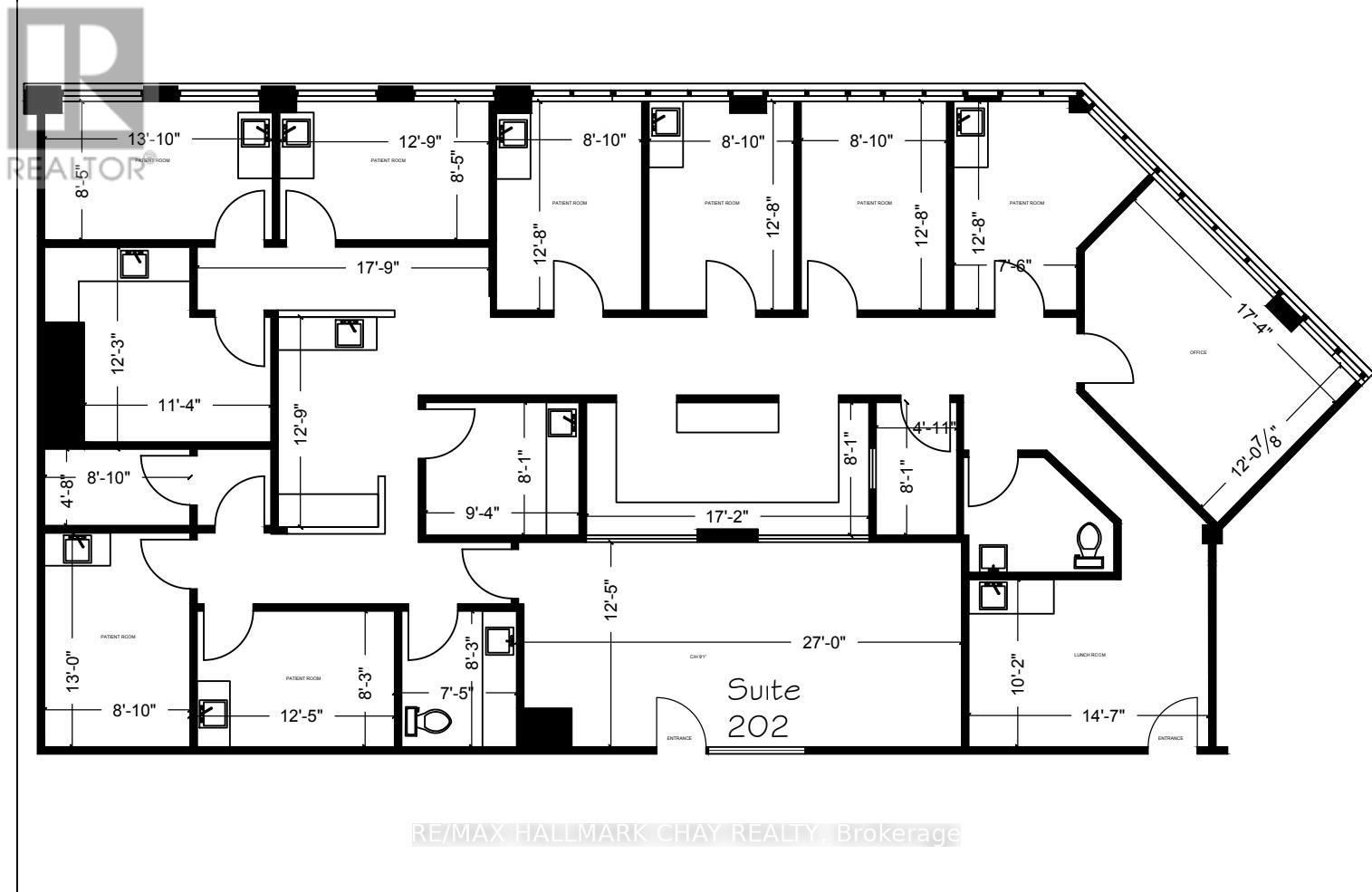
Professional Office space available immediately in busy Medical building located in the rapidly growing South End of Barrie. This Unit offers numerous offices, a large reception/waiting area, kitchen/staff room, storage areas, two washrooms as well as A/C, sprinklers, public elevator , ample parking space, and easy access to Hwy 400. With a qualified Tenant, the Landlord has agreed to terminate existing Leases and sign a new Lease with the new Tenant. (id:4555)

PROPERTY SPECS

Lease $20
City Barrie, Ontario
Address 480 Huronia Road Unit# 202
Listing ID S12603116
Style Offices
Type Industrial/Commercial
Status For Lease

EXTENDED FEATURES

Subtype Office Features Elevator Ownership Leasehold Heating / Cooling Forced air, Natural gas



team photo
Windsor: 519-903-9355
Toronto: 905-220-7333
Office: 905-335-3042

REQUEST MORE INFORMATION

Grocery Stores
Schools
Restaurants
Gas Stations
Banks
Parks
Transit
Police
Fire Station
Place of Worship
Please select an amenity above to view a list.





team photo

Connect with Us

Loading...