Skip the navigation and jump to this page's content.

46 Carol Road Barrie, Ontario

$699,900
5 Beds
  2 Full

PROPERTY INFO

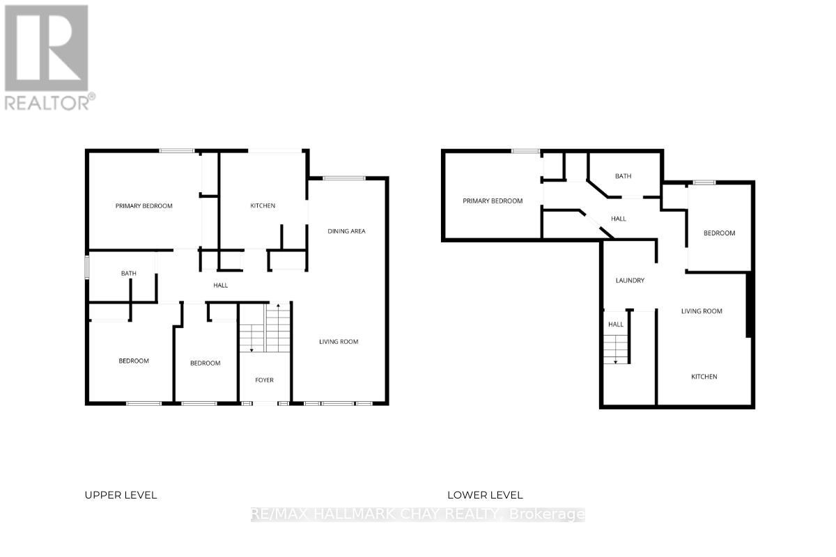
Welcome to 46 Carol Road in the sought-after Allandale community of Barrie. This detached bungalow - offers two separate rental units. UNIT 1 - 3 Bedrooms, Kitchen, Living Room, Dining Room, 4 pc Bathroom. UNIT 2 - 2 Bedrooms, 4 pc Bathroom. Convenience of onsite Laundry, both units (one stacked). Appliances included, as shown. INVESTORS! Looking to step into the real estate investment market? Add to your existing portfolio? Live in one unit and rent out the other to offset your expenses - or - rent out both units at current market rates. This property offers a double car garage with plenty of driveway parking, and a large private rear yard. Situated on one of Barrie's thriving neighbourhoods - steps to schools, parks. Minutes to all the key amenities - shopping, services, fine and casual dining, entertainment. Short drive to all the four season outdoor adventures Simcoe County has to offer - golf, skiing, biking and hiking trails, lake fun! Easy access to commuter routes - public transit, GO train/bus service, highways north to cottage country / south to the GTA! (id:4555)

PROPERTY SPECS

Price $699,900
City Barrie, Ontario
Bed / Bath 5 / 2 Full
Address 46 Carol Road
Listing ID S12542024
Style Raised bungalow, Duplex
Parking 6.00
Type Multi-Family
Status For Sale

EXTENDED FEATURES

Community Features Community Centre Ownership Freehold Basement Finished, Full, Apartment in basement, Separate entrance, N/A Heating / Cooling Forced air, Natural gas Sewer Sanitary sewer Parking 6.00



team photo
Windsor: 519-903-9355
Toronto: 905-220-7333
Office: 905-335-3042

REQUEST MORE INFORMATION

Grocery Stores
Schools
Restaurants
Gas Stations
Banks
Parks
Transit
Police
Fire Station
Place of Worship
Please select an amenity above to view a list.





team photo

Connect with Us

Loading...