Skip the navigation and jump to this page's content.

4 Patterson Road Unit# 1 Barrie, Ontario

$14
  1 Full

PROPERTY INFO

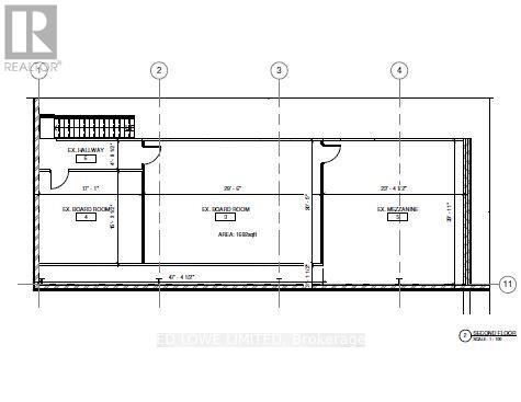
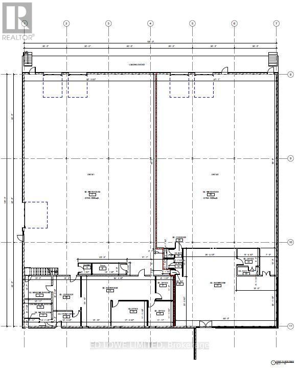
14,980 s.f. Well-maintained free-standing industrial building offering excellent functionality and access. Multiple loading options - 4 Dock-Level Doors (10' x 10')1 Oversized Grade-Level Door. Suitable for warehousing, light manufacturing, or logistics. Ample yard and maneuvering space. Tenant responsible for maintenance and property taxes. Great location with convenient access to major transportation routes. Building height is 19' 8" to underside of soffit and 25' to the underside of the roof at the peak. (id:4555)

PROPERTY SPECS

Lease $14
City Barrie, Ontario
Bath 1 Full
Address 4 Patterson Road Unit# 1
Listing ID S12487974
Type Industrial/Commercial
Status For Lease

EXTENDED FEATURES

Subtype Industrial Ownership Leasehold Heating / Cooling Other



team photo
Windsor: 519-903-9355
Toronto: 905-220-7333
Office: 905-335-3042

REQUEST MORE INFORMATION

Grocery Stores
Schools
Restaurants
Gas Stations
Banks
Parks
Transit
Police
Fire Station
Place of Worship
Please select an amenity above to view a list.





team photo

Connect with Us

Loading...