Skip the navigation and jump to this page's content.

2 Cumberland Lane Ajax, Ontario

$699,900
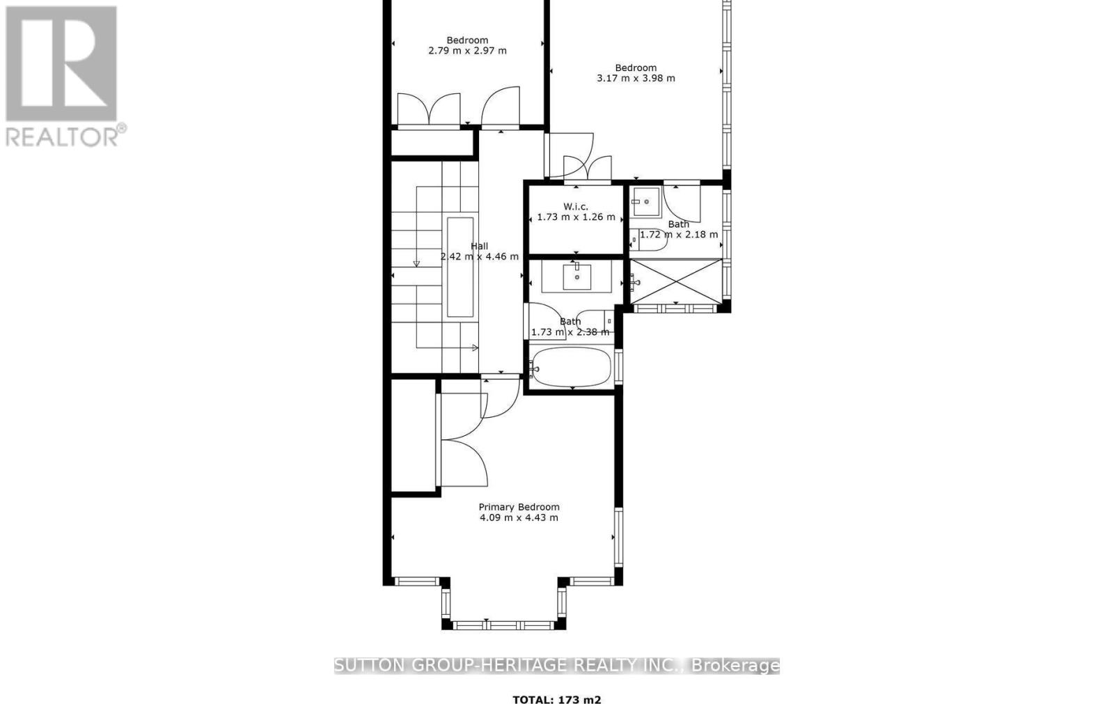
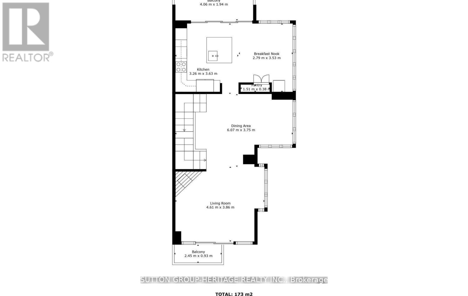
3 Beds
  3 Full / 1 Half
Virtual Tour

PROPERTY INFO

Luxury living by the lake!!! Two minutes to a splash pad and boat launch. If you love the outdoors you are steps to loads of scenic walking/biking trails. There is no other Condominium Complex like the Breakers in Durham Region that includes what it does! You never have to pay a water, cable, internet, phone bill again, or pay for a home security system or a gym membership. All is included!! Never worry about having to deal with replacing your roof ( just been done!), windows, driveway or doors. Plus your landscape is taken care of for you! Lock the door & feel free to travel without worry as there's on site security. This recently renovated end unit also includes 2 parking spaces and there's plenty of visitors parking for guests. Also included is a gym, indoor pool, sauna and hot tub for your enjoyment. Being an end unit this townhome provides loads of natural light with picturesque views of stunning Sunsets and Sunrises. Phenomenal sundeck, 2 balconies & a patio provides plenty of outdoor space without the maintenance for you and your guests. If you like to host large gatherings but don't like the mess in your home, the Breakers provides a large party room for your use. If you love socializing there are clubs, events and activities like water aerobics, yoga, walking, cards, dances and barbecues. (id:4555)

PROPERTY SPECS

Price $699,900
City Ajax, Ontario
Bed / Bath 3 / 3 Full, 1 Half
Address 2 Cumberland Lane
Listing ID E12676130
Style Row / Townhouse
Flooring Hardwood
Parking 2.00
Type Condominium
Status For Sale

EXTENDED FEATURES

Subtype Single Family Community Features Community Centre, Pets Allowed With Restrictions Features Wooded area, Balcony Ownership Freehold Basement Other, See Remarks, N/A Heating / Cooling Forced air, Natural gas Parking 2.00



team photo
Windsor: 519-903-9355
Toronto: 905-220-7333
Office: 905-335-3042

REQUEST MORE INFORMATION

Grocery Stores
Schools
Restaurants
Gas Stations
Banks
Parks
Transit
Police
Fire Station
Place of Worship
Please select an amenity above to view a list.





team photo

Connect with Us

Loading...